
PCB拼板(panelization)的目的在「提升電路板組裝生產線的產出」以及「增加板材的利用率(使用率)」,換句話說就是在增加產能、降低電路板的單價,最終的目的就是『降低成本』。
一般來說我們在計算PCB板材的利用率時都非常倚賴PCB板廠的計算結果,可是有時候板廠在計算的利用率時卻很有可能站在其本位主義,給出一個不一定最適合客戶的答案。
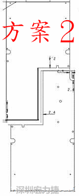
比如說文章最上面這個『L』型PCB板為例,
PCB板廠給出的最佳拼板板材利用率為「方案1」,將兩片板子并排,其利用率為78.50%。
其他我們認為可能是最佳拼板的板材利用率「方案2」,將「L」與「倒L」拼湊在一起的板材利用率為73%,而「方案3」4片拼板(4 in 1)的板材利用率則僅有67.90%。
這有點大大的跌破我們的眼鏡,可是再仔細想想,這樣計算真的對嗎?
再仔細檢討一下板廠所提供的數據,發現「方案1」板材的利用率雖然最好78.50%,可是它卻使用了比較大的板材(40.5”x48.5”)然后產出96片單板,可是「方案2」則使用了比較小的板材(36.5”x48.5”)可是一樣產出96片單板,雖然板材利用率只有73%。
|
拼板方案 |
板材大小 |
拼板數/板材 |
單板/板材 |
拼板尺寸 |
板材利用率 |
|
1 |
40.5” x 48.5”
1028.7mm x 1231.9mm |
48 |
96 |
146mm x 142mm |
78.50% |
|
2 |
36.5” x 48.5”
927.1mm x 1231.9mm |
48 |
96 |
203.9mm x 85.2mm |
73% |
|
3 |
36.5” x 48.5”
927.1mm x 1231.9mm |
24 |
96 |
203.9mm x 158.6mm |
67.90% |
很明顯板廠提供的這個板材利用率的計算有問題,那問題出在那里呢?
「方案1」的計算式,板廠原來把那塊輔助用的板材(A)也算到利用率里面了,這塊輔助板對組裝廠是沒有用處的,裁版之后就會被丟棄,所以應該不可以計算在利用率里面,所以其板材利用率的計算應該是
[[146×142(拼板的總面積)-72×68(輔助板A的面積)] x48] / [10287×1231.9(板材大小)] = 60%
這下子「方案1」的板材利用率反而變成了最低。看樣子拼板的方式應該會跟著翻盤,所以計算板材利用率時應該只能計算單板的面積,而不能計算拼板的面積。而且最好請板廠每種拼板都要報個價錢,因為最終還是以價錢來決定拼板的方式,雖然還得考慮電子組裝廠的作業。
要求板廠對這三種拼板重新做報價而不只提供板材利用率的數字,發現「方案1」的單板價錢果然是最貴的,而「方案2」及「方案3」的對插拼板都比同一個方向拼板來得便宜,所以該選那一個拼板答案應該很明了了。
|
拼板方案 |
板材大小 |
拼板數/板材 |
單板/板材 |
拼板尺寸 |
板材利用率 |
單板價錢 |
|
1 |
40.5” x 48.5”
1028.7mm x 1231.9mm |
48 |
96 |
146mm x 142mm |
78.50% |
NT116 |
|
2 |
36.5” x 48.5”
927.1mm x 1231.9mm |
48 |
96 |
203.9mm x 85.2mm |
73.00% |
NT110 |
|
3 |
36.5” x 48.5”
927.1mm x 1231.9mm |
24 |
96 |
203.9mm x 158.6mm |
67.90% |
NT112
|
深圳宏力捷推薦服務:PCB設計打樣 | PCB抄板打樣 | PCB打樣&批量生產 | PCBA代工代料
